首页
|
新楼盘
|
出售房源
|
出租房源
|
政策法规
|
咨询解答
|
购房工具
|
供求信息
|
网络经纪人
|
登录
方式不限
我要买房
我要租房
区域不限
升平区
龙湖区
金平区
潮南区
潮阳区
澄海区
河浦区
濠江区
类型不限
住宅
铺面
经营
车位
车库
厂房
仓库
别墅
写字楼
高层住宅
多层办公
高层办公
住宅.铺面
住宅.办公
住宅.仓库
办公.仓库
地皮.空地
性质不限
商品房
房改手续
房改一次
房改二次
一九手续
二八手续
二二六
三七手续
三三四
合建手续
合同手续
公产手续
农民手续
合同发票
拍卖手续
私建
私产
拆赔
价格:
至
面积:
至
楼层:
至
汕头房产网热点查询:
星湖城
尚海阳光
金紫世家
万豪南湾
龙腾嘉园
中海东海岸
大悦城
香域水岸
香域春天
香樟美地
悦泰春天
壹品湾
星汇国际
星湖豪景
新星家园
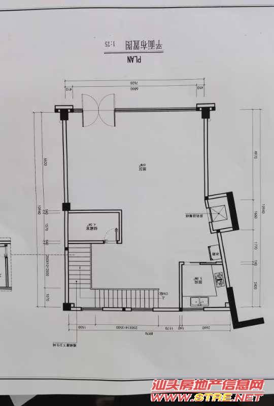
金湖路东夏路【深源美庭】 信息详细内容
物业名称
金湖路东夏路【深源美庭】
物业编号
0083619E5347A
物业地址
金湖路东夏路【深源美庭】
物业面积
210M
2
用 途
铺面
层 次
1
朝 向
向南
套 型
复式
方 式
出租
性 质
商品房
价 格
12000元/月
总 价
12OOO元
装修情况
装修
自编码
其他情况
东夏路金湖路交界,门口可停车
备 注
正规复式,适合百业,有后窗
房源提供
建业房产代理公司
日 期
2025-11-09
客服电话
88162154 88162155 82700444 82700339
金湖路东夏路【深源美庭】 相关图片
图片
图片
图片
图片
图片
图片
金湖路东夏路【深源美庭】 地图位置
登陆全市房源 代理私人借款
给发布 金湖路东夏路【深源美庭】 的商家留言
留言主题:
您的大名:
电子信箱:
联系电话:
您是来自:
请选择
汕头
潮州
潮阳
揭阳
广东
北京
天津
上海
重庆
河北
河南
黑龙江
吉林
辽宁
内蒙古
海南
山西
陕西
山东
江苏
浙江
安徽
江西
福建
甘肃
宁夏
青海
新疆
湖北
湖南
广西
四川
贵州
云南
西藏
香港
澳门
台湾
其它
留言内容:
更多房源
推荐房源
相近面积
珠江路星海华庭 210M
2
7000元/月
荣兴广场 208M
2
8736元/月
荣兴大厦 208M
2
8320元/月
金叶岛 210M
2
4500元/月
荣兴广场 208M
2
9984元/月
珠江路星海华庭 210M
2
7000元/月
珠江楼星海华庭 210M
2
7000元/月
华山路碧霞庄 210M
2
10000元/月
相近价格
汕樟路适合火锅店 400M
2
12000元/月
锦泰花园 400M
2
12000元/月
华坞大路 75M
2
12000元/月
华丽家园 180M
2
12000元/月
韩江路 330M
2
12000元/月
华山路华师园附近 800M
2
12000元/月
嵩山路世贸广场铺面.. 292M
2
12000元/月
锦泰花园向韩江路 400M
2
12000元/月
相近位置
金湖路109号 70M
2
2000元/月
金湖路108号 65M
2
1400元/月
金湖路107号 70M
2
2000元/月
金湖路93号金紫隔壁 80M
2
1600元/月
金湖路 60M
2
3500元/月
金湖路 65M
2
3000元/月
金湖路(东厦中学对.. 40M
2
700元/月
金湖路 80M
2
1600元/月
ICP备案/许可证号:粤B2-20040795号-1
汕头房地产信息网版权所有 2004-2024
粤公网安备 44050702000082号
增值电信经营许可证:粤B2-20040795 提供第一手汕头房产信息 如有任何问题请致电:0754-88860029或Email:service@stre.net